Sanierungsbedürftiges Einfamilienhaus in idyllischer Lage von Thiersee
In ruhiger Wohnlage von Thiersee befindet sich dieses Einfamilienhaus auf einem rund 634 m² großen Grundstück. Die Immobilie bietet eine solide Grundlage für Käufer, die ein Eigenheim nach eigenen Vorstellungen modernisieren und individuell gestalten möchten.
Die Wohnnutzfläche von etwa 141 m² verteilt sich auf zwei Etagen und umfasst insgesamt sechs Zimmer. Die funktionale Grundrissstruktur ermöglicht vielseitige Nutzungsmöglichkeiten und eignet sich sowohl für Familien als auch für Paare mit größerem Platzbedarf.
Im Erdgeschoss befindet sich ein separater Küchenraum mit allen notwendigen Anschlüssen sowie direktem Zugang zur Terrasse und in den Garten. Angrenzend liegt ein weiteres Zimmer, das sich ideal als Esszimmer oder Erweiterung des Wohnbereichs nutzen lässt. Eine Einbauküche ist derzeit nicht vorhanden, wodurch zukünftige Eigentümer volle Gestaltungsfreiheit haben. Ergänzend befinden sich auf dieser Ebene ein Vorraum, ein separates WC sowie zwei Technikräume – einer mit Boiler und einer mit Waschmaschinenanschluss.
Im Obergeschoss befindet sich das großzügige, südlich ausgerichtete Wohnzimmer mit knapp 34 m² Wohnfläche und direktem Zugang zum umlaufenden Balkon. Zusätzlich stehen drei Schlafzimmer sowie ein Badezimmer mit Dusche und WC zur Verfügung.
Der umlaufende Balkon mit Ausrichtung nach Osten, Süden und Westen bietet über den gesamten Tagesverlauf angenehme Sonnenstunden. Ergänzend dazu schließt eine Terrasse direkt an den Küchen- und Wohnbereich an. Die Gartenfläche von rund 205 m² bietet Platz für individuelle Gestaltungsmöglichkeiten und gemütliche Erholungsbereiche.
Das Gebäude befindet sich insgesamt in einem sanierungsbedürftigen Zustand und bietet die Möglichkeit, Ausstattung und energetischen Standard im Zuge einer Modernisierung an heutige Anforderungen anzupassen.
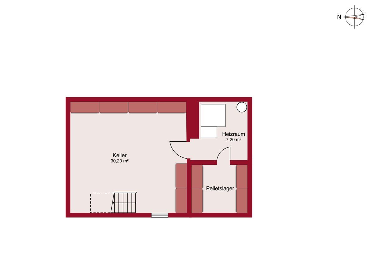
Im Jahr 2015 wurden bereits erste Maßnahmen durchgeführt: Die Pellets-Zentralheizung wurde erneuert und das Badezimmer saniert. Die Heizungsanlage inklusive Pelletlager befindet sich in der unterkellerten Doppelgarage, die Platz für zwei Fahrzeuge sowie zusätzlichen Stauraum bietet. Darüber hinaus eignet sich die Doppelgarage und den darunterliegenden Keller flexible Nutzungsmöglichkeiten. Neben der Garage stehen zusätzliche asphaltierte Freiflächen zur Verfügung, die sich flexibel als weitere Abstellmöglichkeiten nutzen lassen.
Insgesamt präsentiert sich diese Liegenschaft als Haus mit solider Bausubstanz in attraktiver Lage von Thiersee, das durch gezielte Sanierungsmaßnahmen zu einem individuellen Zuhause weiterentwickelt werden kann.
Gerne laden wir Sie ein, das Haus im Rahmen einer persönlichen Besichtigung näher kennenzulernen und sich selbst einen Eindruck von der Immobilie und der familienfreundlichen Umgebung zu verschaffen. Für weitere Informationen stehen wir Ihnen selbstverständlich gerne zur Verfügung.
Die Wohnnutzfläche von etwa 141 m² verteilt sich auf zwei Etagen und umfasst insgesamt sechs Zimmer. Die funktionale Grundrissstruktur ermöglicht vielseitige Nutzungsmöglichkeiten und eignet sich sowohl für Familien als auch für Paare mit größerem Platzbedarf.
Im Erdgeschoss befindet sich ein separater Küchenraum mit allen notwendigen Anschlüssen sowie direktem Zugang zur Terrasse und in den Garten. Angrenzend liegt ein weiteres Zimmer, das sich ideal als Esszimmer oder Erweiterung des Wohnbereichs nutzen lässt. Eine Einbauküche ist derzeit nicht vorhanden, wodurch zukünftige Eigentümer volle Gestaltungsfreiheit haben. Ergänzend befinden sich auf dieser Ebene ein Vorraum, ein separates WC sowie zwei Technikräume – einer mit Boiler und einer mit Waschmaschinenanschluss.
Im Obergeschoss befindet sich das großzügige, südlich ausgerichtete Wohnzimmer mit knapp 34 m² Wohnfläche und direktem Zugang zum umlaufenden Balkon. Zusätzlich stehen drei Schlafzimmer sowie ein Badezimmer mit Dusche und WC zur Verfügung.
Der umlaufende Balkon mit Ausrichtung nach Osten, Süden und Westen bietet über den gesamten Tagesverlauf angenehme Sonnenstunden. Ergänzend dazu schließt eine Terrasse direkt an den Küchen- und Wohnbereich an. Die Gartenfläche von rund 205 m² bietet Platz für individuelle Gestaltungsmöglichkeiten und gemütliche Erholungsbereiche.
Das Gebäude befindet sich insgesamt in einem sanierungsbedürftigen Zustand und bietet die Möglichkeit, Ausstattung und energetischen Standard im Zuge einer Modernisierung an heutige Anforderungen anzupassen.
Im Jahr 2015 wurden bereits erste Maßnahmen durchgeführt: Die Pellets-Zentralheizung wurde erneuert und das Badezimmer saniert. Die Heizungsanlage inklusive Pelletlager befindet sich in der unterkellerten Doppelgarage, die Platz für zwei Fahrzeuge sowie zusätzlichen Stauraum bietet. Darüber hinaus eignet sich die Doppelgarage und den darunterliegenden Keller flexible Nutzungsmöglichkeiten. Neben der Garage stehen zusätzliche asphaltierte Freiflächen zur Verfügung, die sich flexibel als weitere Abstellmöglichkeiten nutzen lassen.
Insgesamt präsentiert sich diese Liegenschaft als Haus mit solider Bausubstanz in attraktiver Lage von Thiersee, das durch gezielte Sanierungsmaßnahmen zu einem individuellen Zuhause weiterentwickelt werden kann.
Gerne laden wir Sie ein, das Haus im Rahmen einer persönlichen Besichtigung näher kennenzulernen und sich selbst einen Eindruck von der Immobilie und der familienfreundlichen Umgebung zu verschaffen. Für weitere Informationen stehen wir Ihnen selbstverständlich gerne zur Verfügung.
Die
Immobilie
Objektnummer
26K167
Nutzungsart
Wohnen
Vermarktungsart
Kauf
Objektart
Haus
Objekttyp
Einfamilienhaus
Zustand
Sanierungsbedürftig
Baujahr
1978
Ort
Thiersee
PLZ
6335
Wohnnutzfläche
141 m²
Grundstücksgröße
634 m²
Gesamtnutzfläche
171 m²
Anzahl Zimmer
6
Badezimmer
1
Separate WCs
1
Anzahl Balkone
1
Anzahl Terrassen
1
Heizkosten
101,15 €
Kaufpreis
599.000 €
Außen-Provision netto
3% zzgl. MwSt.
Objektnummer
26K167
Nutzungsart
Wohnen
Vermarktungsart
Kauf
Objektart
Haus
Objekttyp
Einfamilienhaus
Zustand
Sanierungsbedürftig
Baujahr
1978
Ort
Thiersee
PLZ
6335
Wohnnutzfläche
141 m²
Grundstücksgröße
634 m²
Gesamtnutzfläche
171 m²
Anzahl Zimmer
6
Badezimmer
1
Separate WCs
1
Anzahl Balkone
1
Anzahl Terrassen
1
Heizkosten
101,15 €
Kaufpreis
599.000 €
Außen-Provision netto
3% zzgl. MwSt.
Inhalt wird nach Ihrer Anfrage sichtbar
360° Tour
Grundrisse
Inhalt wird nach Ihrer Anfrage sichtbar
Lage
Inhalt wird nach Ihrer Anfrage sichtbar
Adresse
Inhalt wird nach Ihrer Anfrage sichtbar
Karte
Inhalt wird nach Ihrer Anfrage sichtbar
Infrastruktur
Energieausweis
Art
Bedarfsausweis
Energieträger
Pelletheizung
Heizungsart
Zentralheizung
Gültig bis
26.02.2036
Heizwärmebedarf (AT)
248,7 kWh/(m²a)
Klasse Gesamtenergieeffizienz-Faktor
D
Gesamtenergieeffizienz-Faktor
2,44
Klasse
HWBRef,SK
fGEE SK
A++
A+
A
B
C
D
2,44
E
F
248,7 kWh/(m²a)
248,7 kWh/(m²a)
G
Nichts gefunden?
Werden Sie VIP!
Erhalten Sie alle Immobilienangebot die zu Ihren persönlichen Suchkriterien passen 3 Tage vor der öffentlichen Vermarktung!
Herr Jürgen Montibeller
Maderspergerstraße 2
6330 Kufstein
+4353722158560
montibeller@alphareal.at
Impressionen
Objektbeschreibung
Die Immobilie
360° Tour
Grundrisse
Lage
Infrastruktur
Energieausweis
Anfrage




