Einfamilienhaus mit Potenzial und großem Garten in Fieberbrunn
In ruhiger Wohnlage von Fieberbrunn erwartet dich dieses Einfamilienhaus auf einem großzügigen Grundstück mit viel Potenzial zur individuellen Entfaltung. Die Liegenschaft bietet ideale Voraussetzungen, um den Traum vom eigenen Zuhause nach persönlichen Vorstellungen zu verwirklichen.
Auf rund 125 m² Wohnfläche, verteilt auf zwei Wohnebenen, stehen insgesamt fünf Zimmer zur Verfügung. Das Haus überzeugt vor allem durch seine klare Grundrissstruktur und die gute Raumaufteilung, die vielfältige Nutzungsmöglichkeiten für Familien oder Paare eröffnet.
Im Erdgeschoss befinden sich ein Schlafzimmer, das Wohnzimmer sowie die Küche mit direktem Zugang zur Terrasse. Von hier aus gelangt man in den Garten, der hervorragende Voraussetzungen für eine individuelle Gestaltung bietet – von Blumenbeeten bis hin zum eigenen Gemüseanbau ist hier alles möglich. Ergänzt wird diese Ebene durch ein kleines Badezimmer. Eine Garage für ein Fahrzeug ist direkt beim Haus situiert.
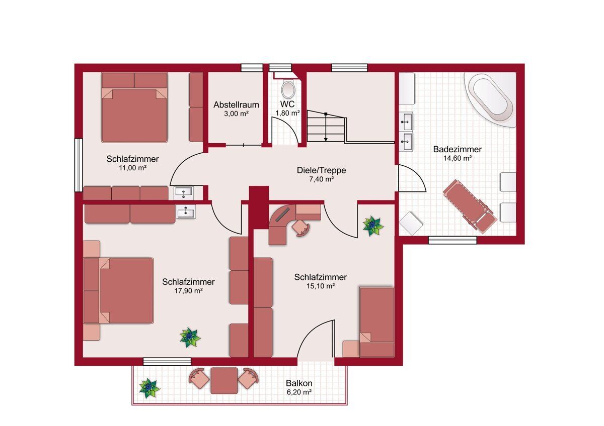
Das 1. Obergeschoss bietet drei weitere Schlafzimmer, einen praktischen Abstellraum, ein separates WC sowie ein großzügiges Badezimmer mit Whirlpool-Badewanne. Das Bad ist als Wellnessbereich konzipiert und bietet bereits jetzt einen angenehmen Rückzugsort. Zusätzlich steht auf dieser Ebene ein Balkon zur Verfügung.
Das Untergeschoss umfasst zwei großzügige Kellerräume sowie den Heizraum mit Ölbrenner, Öltank und Waschmaschinenanschluss.
Das rund 586 m² große Grundstück bietet viel Platz für Garten, Freizeit und Erweiterungsideen. Das Haus wurde in massiver Bauweise errichtet und verfügt über eine solide Bausubstanz. Der aktuelle Zustand ermöglicht es, die Immobilie im Rahmen einer Sanierung nach den eigenen persönlichen Bedürfnissen und Vorstellungen zeitgemäß zu adaptieren und weiterzuentwickeln.
Für weitere Informationen oder eine persönliche Besichtigung stehen wir Ihnen gerne zur Verfügung.
Auf rund 125 m² Wohnfläche, verteilt auf zwei Wohnebenen, stehen insgesamt fünf Zimmer zur Verfügung. Das Haus überzeugt vor allem durch seine klare Grundrissstruktur und die gute Raumaufteilung, die vielfältige Nutzungsmöglichkeiten für Familien oder Paare eröffnet.
Im Erdgeschoss befinden sich ein Schlafzimmer, das Wohnzimmer sowie die Küche mit direktem Zugang zur Terrasse. Von hier aus gelangt man in den Garten, der hervorragende Voraussetzungen für eine individuelle Gestaltung bietet – von Blumenbeeten bis hin zum eigenen Gemüseanbau ist hier alles möglich. Ergänzt wird diese Ebene durch ein kleines Badezimmer. Eine Garage für ein Fahrzeug ist direkt beim Haus situiert.
Das 1. Obergeschoss bietet drei weitere Schlafzimmer, einen praktischen Abstellraum, ein separates WC sowie ein großzügiges Badezimmer mit Whirlpool-Badewanne. Das Bad ist als Wellnessbereich konzipiert und bietet bereits jetzt einen angenehmen Rückzugsort. Zusätzlich steht auf dieser Ebene ein Balkon zur Verfügung.
Das Untergeschoss umfasst zwei großzügige Kellerräume sowie den Heizraum mit Ölbrenner, Öltank und Waschmaschinenanschluss.
Das rund 586 m² große Grundstück bietet viel Platz für Garten, Freizeit und Erweiterungsideen. Das Haus wurde in massiver Bauweise errichtet und verfügt über eine solide Bausubstanz. Der aktuelle Zustand ermöglicht es, die Immobilie im Rahmen einer Sanierung nach den eigenen persönlichen Bedürfnissen und Vorstellungen zeitgemäß zu adaptieren und weiterzuentwickeln.
Für weitere Informationen oder eine persönliche Besichtigung stehen wir Ihnen gerne zur Verfügung.
Die
Immobilie
Objektnummer
26K107
Nutzungsart
Wohnen
Vermarktungsart
Kauf
Objektart
Haus
Objekttyp
Einfamilienhaus
Zustand
Sanierungsbedürftig
Baujahr
1967
Ort
Fieberbrunn
PLZ
6391
Wohnnutzfläche
125 m²
Grundstücksgröße
586 m²
Gesamtnutzfläche
157 m²
Anzahl Zimmer
5
Badezimmer
2
Schlafzimmer
4
Separate WCs
1
Anzahl Balkone
1
Anzahl Terrassen
1
Heizkosten
246 €
Kaufpreis
695.000 €
Außen-Provision netto
3%
Objektnummer
26K107
Nutzungsart
Wohnen
Vermarktungsart
Kauf
Objektart
Haus
Objekttyp
Einfamilienhaus
Zustand
Sanierungsbedürftig
Baujahr
1967
Ort
Fieberbrunn
PLZ
6391
Wohnnutzfläche
125 m²
Grundstücksgröße
586 m²
Gesamtnutzfläche
157 m²
Anzahl Zimmer
5
Badezimmer
2
Schlafzimmer
4
Separate WCs
1
Anzahl Balkone
1
Anzahl Terrassen
1
Heizkosten
246 €
Kaufpreis
695.000 €
Außen-Provision netto
3%
Inhalt wird nach Ihrer Anfrage sichtbar
360° Tour
Grundrisse
Inhalt wird nach Ihrer Anfrage sichtbar
Lage
Inhalt wird nach Ihrer Anfrage sichtbar
Adresse
Inhalt wird nach Ihrer Anfrage sichtbar
Karte
Inhalt wird nach Ihrer Anfrage sichtbar
Infrastruktur
Energieausweis
Art
Bedarfsausweis
Energieträger
Öl
Heizungsart
Zentralheizung
Gültig bis
20.01.2036
Heizwärmebedarf (AT)
358 kWh/(m²a)
Klasse Gesamtenergieeffizienz-Faktor
F
Gesamtenergieeffizienz-Faktor
3,3
Klasse
HWBRef,SK
fGEE SK
A++
A+
A
B
C
D
E
F
3,3
G
358 kWh/(m²a)
358 kWh/(m²a)
Nichts gefunden?
Werden Sie VIP!
Erhalten Sie alle Immobilienangebot die zu Ihren persönlichen Suchkriterien passen 3 Tage vor der öffentlichen Vermarktung!
Herr Jürgen Montibeller
Maderspergerstraße 2
6330 Kufstein
+4353722158560
montibeller@alphareal.at
Ähnliche Immobilien
Impressionen
Objektbeschreibung
Die Immobilie
360° Tour
Grundrisse
Lage
Infrastruktur
Energieausweis
Anfrage



